Пластинчатый теплообменник Sondex SF25A – современное теплообменное оборудование датского производства. Принцип наборных пластин в Sondex SF25A дает возможность решать несколько важных задач: увеличивать мощность теплообменника (добавив нужное количество пластин) и легко проводить очистку и ремонт оборудования.
В процессе теплообмена жидкости движутся навстречу друг другу (в противотоке). В местах их возможного перетекания находится двойное резиновое уплотнение, что практически исключает смешение жидкостей. При этом пластины разработаны без контакта металла пластин в области прохождения жидкости, что обеспечивает высокую турбулентность и, следовательно, высокий коэффициент теплопередачи.
ТЕХНИЧЕСКИЕ ХАРАКТЕРИСТИКИ РАЗБОРНЫХ ПЛАСТИНЧАТЫХ ТЕПЛООБМЕННИКОВ SONDEX
| Наименование показателя |
Значение (характеристика) |
| Рабочая температура,°С |
от –25 до +210 |
| Тип сред |
вода - вода, вода - пар, вода - этиленгликоль |
| Материал прокладок |
EPDM, Nitril, Viton |
ПРЕИМУЩЕСТВА РАЗБОРНЫХ ПЛАСТИНЧАТЫХ ТЕПЛООБМЕННИКОВ SONDEX SF25A
- Экономичность и простота обслуживания. При засорении пластинчатый теплообменник может быть разобран, промыт и собран двумя работниками в течение 4-6 часов.
- Низкая загрязняемость поверхности теплообмена вследствие высокой турбулентности потока жидкости, образуемой рифлением, а также качественной полировки теплообменных пластин.
- Срок эксплуатации уплотнительной прокладки у ведущих европейских производителей достигает 10 лет. Срок работы теплообменных пластин - 20-25 лет. Стоимость замены уплотнений колеблется в пределах 15-25% от стоимости пластинчатого теплообменника, что дешевле аналогичного процесса замены латунной трубной группы в кожухотрубном теплообменнике, составляющей 80-90% от стоимости аппарата.
- Стоимость монтажа пластинчатого теплообменника составляет 2-4% от стоимости оборудования, что на порядок ниже, чем у кожухотрубного теплообменника. Низкие массогабаритные показатели пластинчатого теплообменника позволяют сэкономить на монтаже и уменьшить площади, отводимые под тепловой пункт.
- Индивидуальный расчет каждого пластинчатого теплообменника по оригинальной программе завода-изготовителя позволяет подобрать его конфигурацию в соответствии с гидравлическим и температурным режимами по обоим контурам.
- Изменяемость под задачи: в случае необходимости площадь поверхности теплообмена в пластинчатом теплообменнике может быть легко уменьшена или увеличена простым извлечением или добавлением пластин.
- Конденсация водяного пара в пластинчатом теплообменнике позволяет обходиться без специального доохладителя, т. к. процесс конденсации и доохлаждения конденсата можно осуществить в одном аппарате.
- Устойчивость к вибрациям: пластинчатые теплообменники высокоустойчивы к наведенной двухплоскостной вибрации, вызывающей повреждения кожухотрубного теплообменника.
- Меньшие последствия при гидроударах. Самое негативное последствие гидравлического удара для разборного пластинчатого теплообменника - выход из строя прокладок. В то время как для паяного или сварного, кожухотрубного в том числе, возможно повреждение.
ОБЛАСТИ ПРИМЕНЕНИЯ ПЛАСТИНЧАТЫХ ТЕПЛООБМЕННИКОВ SONDEX SF25A
- Отопление, кондиционирование и горячее водоснабжение.
- Энергетика.
- Металлургическая промышленность.
- Технологические системы и установки морских судов и плавучих объектов.
- Химическая, нефтяная и газовая промышленность.
- Машиностроение.
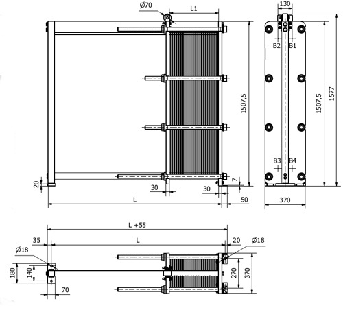
ГАБАРИТНЫЕ РАЗМЕРЫ ТЕПЛООБМЕННИКА SONDEX SF25A

КОНСТРУКЦИЯ И ПРИНЦИП ДЕЙСТВИЯ
Конструктивно разборный пластинчатый теплообменник Sondex SF25A состоит из рамы и пакета пластин. Рама состоит из неподвижной плиты (2) и прижимной плиты (5), задней стойки (6), которая соединена с неподвижной плитой верхней направляющей (7) и нижней направляющей (8). Рамы разборных теплообменников выпускаются разной длины для обеспечения установки в нее разного количества пластин.
Между неподвижной и прижимной плитами находится требуемое количество пластин (3) с резиновыми уплотнительными прокладками. Пакет прижат к неподвижной плите прижимной плитой с помощью стяжных болтов (1). Степень сжатия достаточна для уплотнения и герметизации внутренних полостей разборного пластинчатого теплообменника Sondex SF25A.
Конструкция разборного пластинчатого теплообменника

- Стяжные болты
- Неподвижная плита
- Пластины
- Уплотнительная прокладка
- Прижимная плита
- Задняя стойка
- Верхняя направляющая
- Нижняя направляющая
Принцип работы разборного пластинчатого теплообменника
Теплообменники предназначены для передачи тепла между двумя разделенными между собой средами.

Передача тепла в пластинчатых теплообменниках осуществляется от горячего теплоносителя к холодной (нагреваемой) среде через стальные гофрированные пластины, которые установлены в раму и стянуты в пакет. Жидкости в пластинчатом теплообменнике движутся навстречу друг другу (в противотоке). В местах их возможного перетекания находится либо стальная пластина, либо двойное резиновое уплотнение, что исключает смешение жидкостей внутри теплообменника.
Все пластины в пакете пластинчатого теплообменника одинаковы, только развернуты одна за другой на 180°, поэтому при стягивании пакета пластин образуются каналы, по которым и протекают жидкости, участвующие в теплообмене. Такая установка пластин обеспечивает чередование горячих и холодных каналов. Вид гофрирования пластин и их количество, устанавливаемое в раму, зависят от эксплуатационных требований к пластинчатому теплообменнику.
1 онлайн гипермаркет Sondex предлагает купить разборный пластинчатый теплообменник Сондекс SF25A по цене производителя, с возможностью бесплатной доставки. Наши специалисты помогут подобрать и рассчитать необходимое теплообменное оборудование, отталкиваясь от требований клиента.