Оптимальное образование расходных каналов в теплообменнике LE400-230-2S-DN100.SS обеспечивает компромисс между получением низких опоров расхода и высокой эффективностью теплообмена.
Герметичность конструкции, а также прочное соединение пластин обеспечивает процесс пайки в вакуумной печи.
Это надежное решение в домашних отопительных установках, тепловых узлах, отопительных котлах, камины с водяной рубашкой.
Для каждого размера теплообменника существует возможность выбора разных размеров присоединений, а также двухходовой версии теплообменника, которая характеризуется высокой эффективностью теплообмена при очень требовательных параметрах.
Добавочные аксессуары: подпоры изоляция.
ПРИМЕНЕНИЕ ТЕПЛООБМЕННИКА SECESPOL LE400-230-2S-DN100.SS
- в системах центрального отопления
- в системах солнечного и геотермального обогрева
- в системах с тепловым насосом
- в системах с каминомс водяной рубашкой
- в системах: отопления, вентиляции, технологических, кондиционирования
- воздуха, охлаждения и промышленных
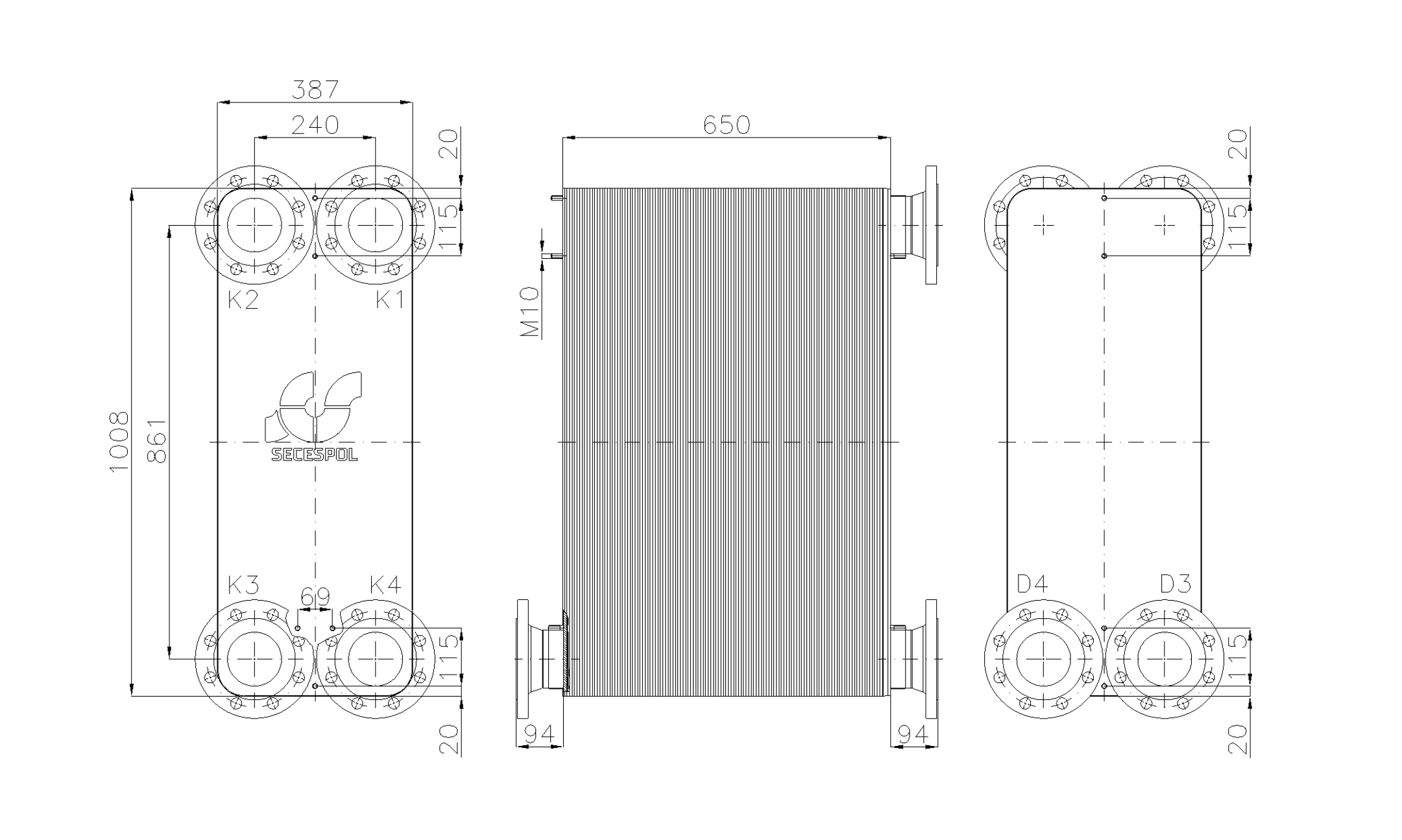
КОНСТРУКЦИЯ И ГАБАРИТНЫЕ РАЗМЕРЫ ТЕПЛООБМЕННИКА SECESPOL LE400-230-2S-DN100.SS
Пластинчатые паяные теплообменники типа L-line являются проточными, противоточными устройствами.
Поверхность теплообмена создают гофрированные пластины из нержавеющей стали объединенные в пакет при помощи медной или никелевой пайки.
Соответствующее образование внутреннего пространства теплообменника направляет поток теплообменивающих агентов в каналы создаваемые каждой второй греющей пластиной.
В защитных пластинах помещены патрубки, подводящие и отводящие робочие агенты.
Теплообменники представляют собой неразборную конструкцию.

Размеры в мм
| A |
B |
C |
D |
E |
| 240 |
861 |
1008 |
367 |
94 |
Стандартное размещение присоединений (одноходовой)
K1/K4 – вход/ выход греющего агента
K3/ K2 – вход /выход нагреваемого агента
Стандартное размещение присоединений (двухходовой)
D4/K4 – вход/выход греющего агента
K3/ D3 – вход/выход нагреваемого агента
В теплообменниках двухходовых с 6 патрубками
K1- патрубок выпускающий воздух/обратный вход ЦО
K2- патрубок выпускающий воздух/обратный вход циркуляции ГВС
ТЕПЛОИЗОЛЯЦИЯ ТЕПЛООБМЕННИКА SECESPOL LE400-230-2S-DN100.SS
Изоляция для теплообменников L-line произведена из полиурета новой изоляционной пенки, покрытой алюминием (APFI). Состоит из двух частей, соединенных между собой при помощи закрытий.
Технические параметры изоляции:
- макс. температура работы: +135 °C
- толщина: 30 мм
- теплопроводность: 0,024 Вт/мК
1 онлайн гипермаркет предлагает своим клиентам паяный теплообменник Secespol LE400-230-2S-DN100.SS по цене производителя, с возможностью бесплатной доставки. Наши специалисты помогут подобрать необходимое оборудование, отталкиваясь от требований клиента.